Venuslaan 82, Nieuw-lekkerland - LV Makelaars
house-yellow
Woonoppervlakte
126m2
bath-yellow
badkamer
1 toilet
door-yellow
4 kamers waarvan
3 slaapkamer(s)
wall-yellow
Gebouwd
in 1972

Aan de rand van de polder, in een autoluwe straat staat deze vrijstaande woning, die achter haar bescheiden voorgevel meer ruimte en comfort biedt dan u misschien verwacht. Binnen ervaart u direct een gemoedelijke, huiselijke sfeer met op de begane grond een royale L-vormige woonkamer, waar de sierlijke open haard direct het oog vangt. Door de speelse, hoge plafonds komt er niet alleen fantastisch licht binnen, maar dit geeft ook een ruimtelijk effect. Naast de mooie keuken is er een warme ontvangstruimte, bijkeuken, slaapkamer en douche. De eerste verdieping kenmerkt zich door een tweetal slaapkamers, badkamer en bergruimte. Recent zijn aan de achterzijde kunststof kozijnen geplaatst en zijn de ramen uitgerust met moderne buitenluxaflex, wat een strakke uitstraling biedt. Verder zijn er drie airco’s en maar liefst achttien zonnepanelen, waardoor u kunt rekenen op een prettig binnenklimaat én duurzaamheid.

ENTREE
Eenmaal aangekomen bij de woning loopt u door de groene voortuin naar de imposante entree. Met een zwaai wordt de voordeur voor u opengedaan en wordt u ontvangen in de hal.

HAL
Nou én of dat u hier een entree maakt! Door de open vide is het heerlijk ruimtelijk. In de hal heeft u de toiletruimte, meterkast, garderobe en de trap naar de eerste verdieping. Verder kunt u ook naar de slaapkamer op de begane grond. Door de ramen ziet u de woonkamer en deze trekt u om te betreden.

Maatvoering: Circa 9 m²
Vloerafwerking: Plavuizen
Wandafwerking: Schoonmetselwerk / houten delen / stucwerk
Plafondafwerking: Houten delen

TOILET
Naast de voordeur treft u deze sanitaire ruimte voorzien van een staand toilet en een handwasfonteintje.

Maatvoering: Circa 1.14 x 0.84m
Vloerafwerking: Betegeld
Wandafwerking: Betegeld
Plafondafwerking: Stucwerk

WOONKAMER
Wat een heerlijke woonkamer! Het hoge plafond, de grote raampartijen, een airco en de huiselijke sfeer maken dit absoluut tot een fijne kamer. Centraal staat de sfeervolle gashaard welke knus bij de zithoek staat. Schuif de grote schuifpui open en u betrekt het binnenleven direct met buiten! Er is alle ruimte om een ruime eettafel te plaatsen, naast de toegang tot de keuken. Verder kunt u vanuit de kamer naar de bijkeuken.

Maatvoering: Circa 38 m²
Vloerafwerking: Parket
Wandafwerking: Stucwerk / schoonmetselwerk
Plafondafwerking: Spanplafond / geïsoleerde dakdelen

KEUKEN
Via de halfronde toog vanuit de woonkamer komt u in de keuken. De U-opstelling heeft een eikenlook en past helemaal in de stijl van de woning. U heeft alle ruimte aan het aanrechtblad en maakt hier de lekkerste maaltijden. Aan keukenapparatuur heeft u de beschikking over een inductiekookplaat, afzuigkap en koel-/vriescombinatie. Leuke details, zoals de authentieke ramen en open kast geven een landelijke toevoeging.

Maatvoering: Circa 3.25 x 2.86m
Vloerafwerking: Plavuizen
Wandafwerking: Betegeld / stucwerk / houten lambrisering
Plafondafwerking: Aluminium delen

BIJKEUKEN
De bijkeuken is een fijne, praktische ruimte. Hier heeft u de aansluitingen voor de wasmachine en droger, maar ook voldoende plek voor het opbergen van schoenen en jassen. Via de achterdeur komt u in de tuin.

Maatvoering: Circa 5 m²
Vloerafwerking: Zeil
Wandafwerking: Schoonmetselwerk
Plafondafwerking: Gips

SLAAPKAMER I
Een groot voordeel van deze woning is de grote slaapkamer op de begane grond! Deze is ook voorzien van een airco, douche, wastafelmeubel en inbouwkast. Doordat er zowel aan de voor- als zijgevel ramen zijn, is er prettig lichtinval. Liever een grote werk-, hobby- of speelkamer? Daar leent deze kamer zich ook zeker voor!

Maatvoering: Circa 4.26/5.16 x 2.90m
Vloerafwerking: Vloerbedekking
Wandafwerking: Stucwerk
Plafondafwerking: Gips

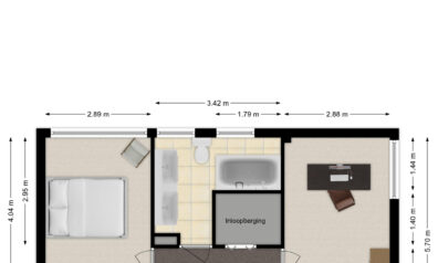
INDELING EERSTE VERDIEPING
OVERLOOP
De L-vormige woonkamer met open vide geven eveneens een ruimtelijk effect. Op overloop treft u ook de omvormer van de zonnepanelen. Aan weerszijden is er toegang tot de slaapkamers en verder kunt u naar de badkamer. Daarnaast is er een inloopberging van circa 1.79 x 1.40m waar u gemakkelijk kleding kunt opbergen.

Maatvoering: Circa 6 m²
Vloerafwerking: Vloerbedekking
Wandafwerking: Schoonmetselwerk / spachtelputz
Plafondafwerking: Houten delen

SLAAPKAMER I
Aan de linkerzijde van de woning treft u deze grote slaapkamer welke ook een tweetal inloopkasten heeft en grote berging onder het schuine dak aan de voorzijde. Daarbij heeft u het gemak van een airco.

Maatvoering: Circa 4.04 x 2.89m (excl. kasten)
Vloerafwerking: Vloerbedekking
Wandafwerking: Sauswerk
Plafondafwerking: Houten delen

SLAAPKAMER II
Aan de andere zijde van de woning heeft u deze slaapkamer, eveneens heerlijk ruim! Ook hier is aan de voorzijde bergruimte onder het schuine dak.

Maatvoering: Circa 5.70 x 2.88m
Vloerafwerking: Vloerbedekking
Wandafwerking: Sauswerk / granol
Plafondafwerking: Houten delen

BADKAMER
In het midden treft u de badkamer, geheel in lichte kleurstelling uitgevoerd. Naast de grote dubbel wastafelmeubel heeft u een toilet en ligbad met douche. Daarbij heeft u convectorverwarming.

Maatvoering: Circa 7 m²
Vloerafwerking: Betegeld
Wandafwerking: Betegeld
Plafondafwerking: Stucwerk

RONDOM DE WONING
De woning staat op het midden van een perceel van 345 m². Direct achter de woning is een groot terras. De tuin is aangelegd in een mix van struiken, bomen, hagen en diverse bloeiende zomerstruiken. Daarbij vindt u altijd wel een plekje in de zon of in de schaduw. Naast de bijkeuken heeft u een inpandige berging van circa 1.19 x 2.26m waar u de opstelling heeft van de C.V.-ketel en een wastafel. Een ideale ruimte om tuingereedschap op te bergen. Aan de rechterzijde is een houten berging tegen de woning geplaatst van circa 3.40 x 2.37m.

Zoals eerder gezegd komt er weinig verkeer langs de woning doordat deze aan het einde van de straat is gelegen en aan de voorzijde is een brede groenstrook waardoor u in alle rust en privacy hier woont. U wandelt of fietst gemakkelijk via de Tiendweg de verdere polder in, maar ook langs de rivier de Lek is dit heerlijk. In het dorp heeft u allerlei dagelijkse voorzieningen waardoor u alle vlakbij heeft!

Kenmerken
Overdracht
  • Status Beschikbaar
  • Koopsom € 575.000,- Kosten koper
  • Aanvaarding In overleg
Bouwvorm
  • Soort object Eengezinswoning
  • Type woonhuis Vrijstaande woning
  • Bouwjaar 1972
  • Bouwvorm Bestaande bouw
  • Ligging Aan rustige weg, in woonwijk, vrij uitzicht
Indeling
  • Woonoppervlakte 126 m2
  • Inhoud 470 m3
  • Aantal kamers 4
  • Aantal slaapkamers 3
  • Aantal woonlagen 2
Energie
  • Energielabel B
  • Isolatie Dakisolatie
  • Warm water Cv ketel
  • Verwarming Cv ketel, gashaard
  • C.v.-ketel bouwjaar 2009
  • C.v.-ketel type Gas
  • Combiketel Ja
  • C.v.-ketel eigendom Eigendom
Buitenruimte
  • Ligging Aan rustige weg, in woonwijk, vrij uitzicht
  • Hoofdtuin Tuin rondom
  • Achterom 1
  • Kwaliteit tuin Verzorgd
Parkeergelegenheid
  • Parkeerfaciliteiten Openbaar parkeren
  • Garage Geen garage
Dak
  • Soort dak Zadeldak
Overig
  • Onderhoud binnen Goed
  • Onderhoud buiten Goed
  • Huidig gebruik Woonruimte
  • Huidige bestemming Woonruimte
Kadastrale gegevens
  • Gemeente Nieuw-lekkerland
  • Sectie C
  • Perceelnummer 431
  • Oppervlakte 345 m2
  • Eigendomssituatie Volle eigendom
Video’s
Documenten

Selecteer hieronder de gewenste documenten om ze te downloaden.

Interesse in deze woning?
Plan direct een bezichtiging.