Zeelt 120, Alblasserdam - LV Makelaars
house-yellow
Woonoppervlakte
155m2
bath-yellow
badkamer
1 toilet
door-yellow
6 kamers waarvan
5 slaapkamer(s)
wall-yellow
Gebouwd
in 1993

Riant robuust en rust, deze drie R-kernwoorden staan hier zeker centraal. Maar er is nog meer…! Achter de hoge voorgevel van deze fantastische familiewoning gaat veel ruimte schuil met een speelse indeling. De begane grond kenmerkt zich door een lichte L-vormige woonkamer en halfopen keuken. Daarbij is er een grote, inpandige garage en wat deze uniek maakt, is de extra grote vliering waar volop bergruimte is. Achter de garage is er een berging voor bijv. fietsen en de bijkeuken. Op de eerste verdieping zijn een drietal slaapkamers en een badkamer voorzien van alle gemakken. Tot slot heeft u nog twee slaapkamers op de tweede verdieping. Achter de woning ligt een keurige, frisgroene tuin met een overkapping, vijver en vrij gelegen waardoor u alle privacy heeft! Het wooncomfort is hoog en uw energielasten laag zijn, doordat er vloerverwarming op de begane grond is, er 12 zonnepanelen zijn en onlangs is de woning buitenom geschilderd! U begrijpt wel dat dit een royale, praktische gezinswoning is!

ENTREE
Aan de rand van deze rustige woonwijk treft u deze woning. Bij aankomst heeft u het gemak van de eigen oprit, waar u gemakkelijk twee auto’s plaatst. Daarbij kunt u in de inpandige garage ook een auto plaatsen. De voortuin is aangelegd met diverse beplantingen en struiken.

HAL
Met een warm onthaal wordt u welkom geheten in de ontvangstruimte. In de hal heeft u een garderobekast, meterkast, toiletruimte en de trap naar de eerste verdieping. De meterkast is voorzien van drie fases en er zijn nog twee groepen over voor bijv. een oplader voor de elektrische auto. Tevens is er toegang tot de garage en de woonkamer.

Maatvoering: Circa 10 m²
Vloerafwerking: Marmeren vloertegels met vloerverwarming
Wandafwerking: Granol
Plafondafwerking: Spuitwerk

TOILET
Nette toiletruimte voorzien van een vrijhangend closet en een handwasfonteintje.

Maatvoering: Circa 1.17 x 0.88m
Vloerafwerking: Betegeld met vloerverwarming
Wandafwerking: Betegeld
Plafondafwerking: Stucwerk

WOONKAMER
Zodra u binnenstapt in de woonkamer voelt u zich helemaal thuis! Mede door de grote raampartijen is deze huiselijke kamer heerlijk licht en ruim. Aan de achterzijde is een ruime zitkamer met vrij zicht over uw tuin en via de tuindeuren kunt u direct naar de tuin. Aan de voorzijde vloeit de woonkamer over in de keuken. De totale oppervlakte van de woonkamer en keuken zijn 50 m²!

Vloerafwerking: Marmeren vloertegels met vloerverwarming
Wandafwerking: Granol
Plafondafwerking: Spuitwerk

KEUKEN
Zowel in de keuken als in de woonkamer staat de prettige lichtinval centraal! U kunt in deze gezellige woonkeuken heerlijk kokkerellen. Aan de hoekopstelling heeft u de combimagnetron, koel-/vriescombinatie, vaatwasser en spoelbak. Aan het schiereiland heeft u de inductiekookplaat en extra kastruimte. Naast de keukenopstelling is er alle plaats voor de eettafel zodat koken en dineren samen opgaan!

Maatvoering: Circa 5.99 x 2.65m
Vloerafwerking: Marmeren vloertegels met vloerverwarming
Wandafwerking: Granol
Plafondafwerking: Spuitwerk

INDELING EERSTE VERDIEPING
OVERLOOP
Vanaf de overloop heeft u toegang tot de drie slaapkamers en badkamer. Daarnaast heeft u de trap naar de begane grond en de tweede verdieping.

Maatvoering: Circa 3.03 x 2.07m
Vloerafwerking: Laminaat
Wandafwerking: Granol
Plafondafwerking: Spuitwerk

SLAAPKAMER I
De master bedroom is aan de achterzijde gesitueerd. Deze is voorzien van een grote vaste kast en een elektrisch rolluik.

Maatvoering: Circa 5.36 x 3.02m
Vloerafwerking: Laminaat
Wandafwerking: Granol
Plafondafwerking: Spuitwerk

SLAAPKAMER II
Deze slaapkamer is eveneens aan de achterzijde gesitueerd en heeft een kastenwand over de volle lengte.

Maatvoering: Circa 4.32 x 3.00m
Vloerafwerking: Laminaat
Wandafwerking: Behang
Plafondafwerking: Spuitwerk

SLAAPKAMER III
Aan de voorzijde van de woning treft u deze slaapkamer, eveneens een ruime kamer!

Maatvoering: Circa 4.23 x 3.02m
Vloerafwerking: Laminaat
Wandafwerking: Behang
Plafondafwerking: Spuitwerk

BADKAMER
Een badkamer voorzien van alle gemakken! Of u liever een douche neemt of ontspant in een ligbad, de keuze is aan u. Verder is er een toilet en een dubbel wastafelmeubel.

Maatvoering: Circa 3.14 x 2.89/2.05m
Vloerafwerking: Betegeld
Wandafwerking: Betegeld
Plafondafwerking: Spuitwerk

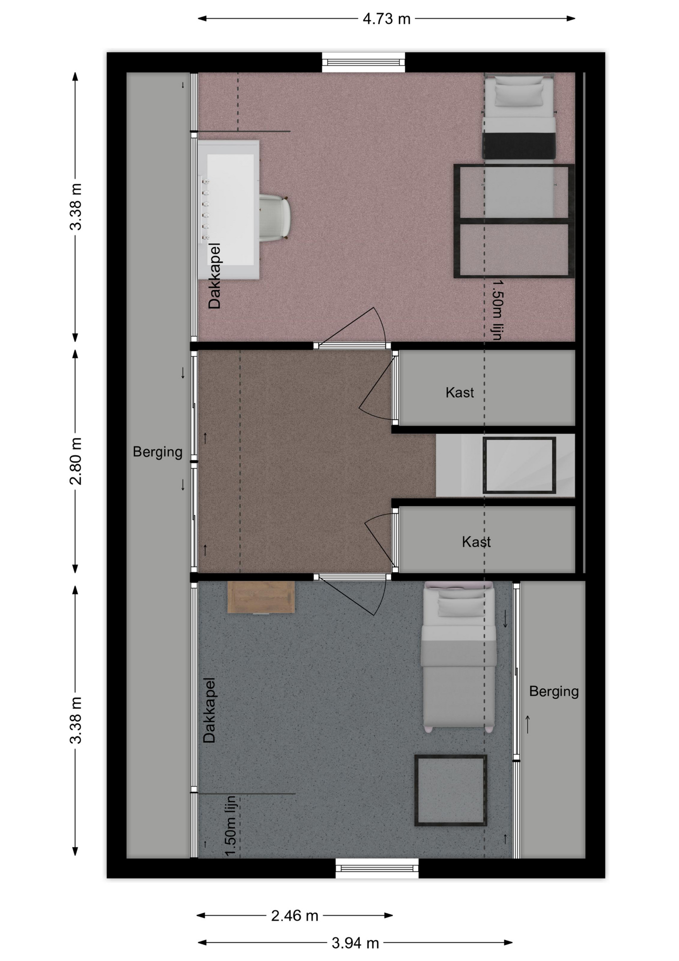
INDELING TWEEDE VERDIEPING
OVERLOOP
U zult verrast zijn hoeveel ruimte er op de tweede verdieping nog is! Aan weerszijden van de ruime overloop zijn er twee slaapkamers en veel bergruimte. Naast de trap zijn een tweetal inloopkasten waarvan in één van de kasten de opstelling is van de C.V.-ketel.

Maatvoering: Circa 9 m²
Vloerafwerking: Vloerbedekking
Wandafwerking: Spachtelputz
Plafondafwerking: Gips

SLAAPKAMER IV
De vierde slaapkamer treft u aan de achterzijde. Door de vele ramen en het dakkapel kijkt u leuk weg over de molens van Kinderdijk! De kamer is momenteel in gebruik als werkkamer, mede door de fijne lichtinval is dit een fijne werkruimte. Maar u kunt hier ook gemakkelijk een slaapkamer creëren. Onder het dakkapel is er nog extra opbergruimte. Daarnaast zijn er elektrische rolluiken.

Maatvoering: Circa 4.73 x 3.38m
Vloerafwerking: Vloerbedekking
Wandafwerking: Behang
Plafondafwerking: Gips

SLAAPKAMER V
Aan de voorzijde is deze laatste slaapkamer gesitueerd. Ook hier heeft u een dakkapel met elektrische rolluiken en bergruimte aan weerszijden.

Maatvoering: Circa 3.94 x 3.38m
Vloerafwerking: Vloerbedekking
Wandafwerking: Behang
Plafondafwerking: Gips

GARAGE
Vanuit de hal of via de, op afstand bedienbare, elektrische schuifdeur komt u in deze ruime, inpandige garage. Onlangs is er een nieuwe coating aangebracht op de vloer van de garage. Een uniek detail is de royale bergzolder welke gevestigd is tot in de nok. Hier kunt u volop spullen opbergen! Aan de achterzijde is er een inpandige berging (circa 2.76 x 2.18m) voor bijvoorbeeld het plaatsen van fietsen. Daarnaast heeft u nog een bijkeuken (circa 2.15 x 1.89m), welke volledig betegeld is en voorzien van een keukenblok met spoelbak, koelkast, vriezer en wasmachine-aansluitingen. Een ideale ruimte, want er is ook een achterdeur naar de tuin.

Maatvoering garage: Circa 29 m²

RONDOM DE WONING
Een tuin om volop in te genieten! Wat een heerlijke tuin ligt er achter de woning. Doet u een rondje mee? Vanuit de woonkamer stapt u op het grote terras met naastgelegen overkapping. Achter dit terras ligt een frisgroen gazon, vijver en diverse beplantingen. Loopt u verder over de tegels in het frisgroene gazon, dan komt u de haag waarachter een houten vlonder aan het water ligt. Een heerlijk plekje om te genieten van het vrije zicht, of voor kinderen om te vissen! Aan de rechterzijde loopt ook een betegeld pad langs de sierlijke hortensiastruiken naar nog een beschut zithoekje! Op diverse plekken in de tuin zijn zo leuke hoekjes gecreëerd. Aan de zijzijde is er de poort zodat u ook achterom kunt komen.

De woning staat aan de rand van het dorp, heerlijk rustig maar ook centraal. Op loopafstand heeft u sportpark ‘Molenzicht’ en tevens wandelt of fietst u zo de polder in. Daarnaast heeft u winkels, scholen, speeltuintjes, horecagelegenheden, openbaar vervoer en overige voorzieningen ook op korte afstand. Dit maakt het tot een aangename woonomgeving!

Kenmerken
Overdracht
  • Status Beschikbaar
  • Koopsom € 875.000,- Kosten koper
  • Aanvaarding In overleg
Bouwvorm
  • Soort object Eengezinswoning
  • Type woonhuis Vrijstaande woning
  • Bouwjaar 1993
  • Bouwvorm Bestaande bouw
  • Ligging Aan rustige weg, in woonwijk, vrij uitzicht
Indeling
  • Woonoppervlakte 155 m2
  • Inhoud 675 m3
  • Aantal kamers 6
  • Aantal slaapkamers 5
  • Aantal woonlagen 3
Energie
  • Energielabel A
  • Isolatie Muurisolatie, vloerisolatie, dubbel glas
  • Warm water Cv ketel
  • Verwarming Cv ketel, vloerverwarming gedeeltelijk
  • C.v.-ketel bouwjaar 2019
  • C.v.-ketel type Gas
  • Combiketel Ja
  • C.v.-ketel eigendom Eigendom
Buitenruimte
  • Ligging Aan rustige weg, in woonwijk, vrij uitzicht
  • Kwaliteit tuin Verzorgd
Parkeergelegenheid
  • Parkeerfaciliteiten Op eigen terrein
  • Garage Inpandig
Dak
  • Soort dak Zadeldak
Overig
  • Onderhoud binnen Goed
  • Onderhoud buiten Goed
  • Huidig gebruik Woonruimte
  • Huidige bestemming Woonruimte
Kadastrale gegevens
  • Gemeente Alblasserdam
  • Sectie C
  • Perceelnummer 3734
  • Oppervlakte 435 m2
  • Eigendomssituatie Volle eigendom
Video’s
Documenten

Selecteer hieronder de gewenste documenten om ze te downloaden.

Interesse in deze woning?
Plan direct een bezichtiging.