Zwaluwstraat 16, Bleskensgraaf ca - LV Makelaars
house-yellow
Woonoppervlakte
104m2
bath-yellow
badkamer
1 toilet
door-yellow
5 kamers waarvan
4 slaapkamer(s)
wall-yellow
Gebouwd
in 1969

Deze instapklare tussenwoning combineert praktische leefruimtes met een uniek vrij uitzicht aan de achterzijde over de karakteristieke Boerderij Gijbeland en de frisgroene polder. De afgelopen jaren is de woning opgeknapt en goed onderhouden met sfeervolle inrichting. Op de begane grond bevindt zich een fijne doorzonwoonkamer met veel lichtinval en een praktische hoekkeuken. De eerste verdieping beschikt over drie slaapkamers, waarvan één ingericht als wasruimte en een badkamer. Tot slot is er een ruime tweede verdieping waar u naast diverse bergingen, een ruim opgezette vierde slaapkamer heeft. Vanuit de dakkapel kijkt u fantastisch weg over de omgeving. De achtertuin is onderhoudsvriendelijk aangelegd met een gezellig zitje op de vlonder aan het water, een heerlijke plek om te ontspannen. Tot slot draagt de woning energielabel A!

ENTREE
Aan de voorzijde is een speeltuintje gelegen en via het voorgelegen voetpad komt u bij de woning. De tuin is netjes aangelegd en als u een leuk zitje plaatst, geniet u al in de vroege ochtend van het zonnetje.

HAL
U stapt binnen in een ruime hal waar u de toiletruimte, trapopgang, trapkast en meterkast heeft. Verder is er een garderobe voor het ophangen van de jassen en toegang tot de woonkamer.

Maatvoering: Circa 6 m²
Vloerafwerking: Gietvloer met vloerverwarming
Wandafwerking: Stucwerk
Plafondafwerking: Stucwerk

TOILET
Nette toiletruimte voorzien van vrijhangend closet en een handwasfonteintje.

Maatvoering: Circa 1.26 x 0.87m
Vloerafwerking: Gietvloer met vloerverwarming
Wandafwerking: Betegeld
Plafondafwerking: Kunststof delen

WOONKAMER
De woonkamer kenmerkt zich door de grote raampartijen aan zowel de voorzijde als de achterzijde. Daarbij is er een heerlijke houtkachel waar u ongetwijfeld veel plezier van zult hebben. Aan de achterzijde vloeit de kamer over in de keuken.

Maatvoering: Circa 7.10 x 3.57m
Vloerafwerking: Gietvloer met vloerverwarming
Wandafwerking: Stucwerk
Plafondafwerking: Stucwerk

KEUKEN
De hoekkeuken heeft een warme, moderne look met donkere kasten in combinatie met de goudkleurige Quooker. Aan inbouwapparatuur is er de beschikking over een inductiekookplaat, afzuigkap, koel-/vriescombinatie, vaatwasser en combimagnetron. Via de achterdeur (voorzien van kunststof kozijnen) kunt u naar de tuin. En zegt u het zelf; deze eethoek is toch een sfeertje!

Maatvoering: Circa 3.00 x 2.17m
Vloerafwerking: Gietvloer met vloerverwarming
Wandafwerking: Stucwerk
Plafondafwerking: Stucwerk

INDELING EERSTE VERDIEPING
OVERLOOP
Vanaf de overloop kunt u naar de drie slaapkamers en de badkamer. Alle ramen op de eerste verdieping zijn voorzien van kunststof kozijnen.

Maatvoering: Circa 2.10 x 2.18m
Vloerafwerking: Gietvloer
Wandafwerking: Stucwerk / behang
Plafondafwerking: Gips

SLAAPKAMER I
Deze grote slaapkamer treft u aan de achterzijde.

Maatvoering: Circa 4.02 x 3.31/3.57m
Vloerafwerking: Gietvloer
Wandafwerking: Stucwerk / behang
Plafondafwerking: Gips

SLAAPKAMER II
Eveneens aan de achterzijde heeft u deze kamer, welke momenteel in gebruik is als wasruimte. Hier zijn namelijk de aansluitingen voor uw wasapparatuur.

Maatvoering: Circa 3.05 x 2.43m
Vloerafwerking: Gietvloer
Wandafwerking: Behang
Plafondafwerking: Gips

SLAAPKAMER III
Tot slot deze derde slaapkamer, deze treft u aan de voorzijde en is voorzien van een rolluik.

Maatvoering: Circa 3.57 x 2.99m
Vloerafwerking: Gietvloer
Wandafwerking: Stucwerk
Plafondafwerking: Gips

BADKAMER
De badkamer is aan de voorzijde gesitueerd en voorzien van een douche, toilet en een wastafelmeubel. Het warm water komt via de elektrische boiler.

Maatvoering: Circa 2.13 x 1.47m
Vloerafwerking: Betegeld
Wandafwerking: Betegeld
Plafondafwerking: Kunststof delen

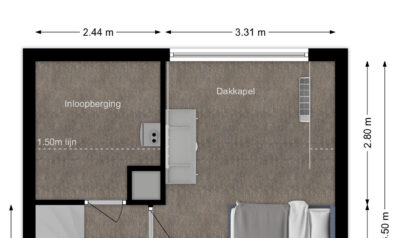
INDELING TWEEDE VERDIEPING
OVERLOOP
Vanaf de overloop kunt u naar de vierde slaapkamer en de inloopberging waar de opstelling van de C.V.-ketel zich bevindt en de elektrische boiler. Aan de andere zijde is er ook nog een berging.

Maatvoering: Circa 2.38 x 2.18m
Vloerafwerking: Zeil
Wandafwerking: Stucwerk
Plafondafwerking: Stucwerk

SLAAPKAMER IV
Deze slaapkamer is heerlijk ruim door de grote dakkapel, welke voorzien is van een kunststof kozijn. En het uitzicht zal u hier niet vervelen!

Maatvoering: Circa 6.50 x 3.55/3.31m
Vloerafwerking: Zeil
Wandafwerking: Stucwerk
Plafondafwerking: Stucwerk

RONDOM DE WONING
De achtertuin is onderhoudsvriendelijk aangelegd met bestrating en kunstgras. Direct achter de woning is een groot terras met de houtopslag voor de kachel. Loopt u verder dan komt u bij de stenen berging van circa 3.83 x 2.62m. Erachter ligt een pad waar recht van overpad op is gevestigd zodat u achterom kunt komen, maar ook uw buren over dit pad mogen komen en gaan.

Tot slot is er nog een fantastisch plekje aan het water op de houten vlonder waar het heerlijk genieten is. U kijkt vrij weg naar Boerderij Gijbeland en de polder. Wat dacht u van schaatsen in de wintermaanden op het water? Of u neemt een kano en doorkruis de polder via het water? Dagelijkse voorzieningen zijn op korte afstand van de woning gelegen en u woont hier dan rustig maar ook centraal.

Kenmerken
Overdracht
  • Status Verkocht onder voorbehoud
  • Koopsom € 389.500,- Kosten koper
  • Aanvaarding In overleg
Bouwvorm
  • Soort object Eengezinswoning
  • Type woonhuis Tussenwoning
  • Bouwjaar 1969
  • Bouwvorm Bestaande bouw
  • Ligging Aan rustige weg, in woonwijk
Indeling
  • Woonoppervlakte 104 m2
  • Inhoud 335 m3
  • Aantal kamers 5
  • Aantal slaapkamers 4
  • Aantal woonlagen 3
Energie
  • Energielabel A
  • Isolatie Dakisolatie, muurisolatie, dubbel glas, hr glas
  • Warm water Cv ketel, elektrische boiler eigendom
  • Verwarming Cv ketel, vloerverwarming gedeeltelijk, houtkachel
  • C.v.-ketel bouwjaar 2021
  • C.v.-ketel type Gas
  • Combiketel Ja
  • C.v.-ketel eigendom Eigendom
Buitenruimte
  • Ligging Aan rustige weg, in woonwijk
  • Hoofdtuin Achtertuin
  • Oppervlakte hoofdtuin 75
  • Ligging hoofdtuin Noord
  • Achterom 1
  • Kwaliteit tuin Verzorgd
Parkeergelegenheid
  • Parkeerfaciliteiten Openbaar parkeren
  • Garage Geen garage
Dak
  • Soort dak Zadeldak
Overig
  • Onderhoud binnen Goed
  • Onderhoud buiten Goed
  • Huidig gebruik Woonruimte
  • Huidige bestemming Woonruimte
Kadastrale gegevens
  • Gemeente Bleskensgraaf
  • Sectie A
  • Perceelnummer 2832
  • Oppervlakte 148 m2
  • Eigendomssituatie Volle eigendom
Video’s
Documenten

Selecteer hieronder de gewenste documenten om ze te downloaden.

Interesse in deze woning?
Plan direct een bezichtiging.